

指宿市役所前の区画整理地のご案内ですヾ(๑╹ꇴ◠๑)ノ”
いま、指宿で特に人気の高い新興住宅地エリアとなっております✧︎*。
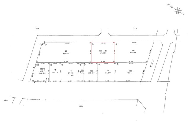
敷地面積は 113.7坪。
お家・駐車場・お庭をバランスよく配置できる、ちょうど良い広さです(˘︶˘).。.:*♡
本区画(32街区)近くには、「近隣1号公園(仮称)」 の整備が予定されています(*˙꒳˙*)‧⁺✧︎*
小学校・市役所・美容室・お買い物施設・病院などが徒歩圏内に揃い、年を重ねてからもなお、その立地の良さを実感できる住環境です✧︎*。
これまでに掲載した十町区画整理地内の土地も、いずれも早い段階でご成約となっております*ˊᵕˋ)੭
今回も、もちろん——言わずもがな「早い者勝ち」でございます(。v_v。)
どうぞお気軽にお問い合わせくださいませヾ(๑ㆁᗜㆁ๑)ノ”
| 価格 | 860万円 | 物件種別 | 売地 | 坪単価 | 7.6万円 |
|---|
| 所在地 | 指宿市十町土地区画整理地32街区3号画地 |
|---|---|
| 交通 | JR指宿枕崎線 二月田駅まで徒歩約19分(約1300m) |
| 駐車場 | 取引態様 | 仲介 | |
|---|---|---|---|
| 引渡/入居時期 | 現況 | ||
| 地目 | 宅地 | 用途地域 | 第1種中高層住居専用地域 |
| 都市計画 | 非線引き区域 | 地勢 | |
| 土地面積 | 375.89㎡(113.7坪) | 土地面積計測方式 | 公簿 |
| 建ぺい率 | 60% | 容積率 | 200% |
| 土地権利 | 所有権 | 接道状況 | |
| 接道方向1 | 接道間口1 | ||
| 接道種別1 | 接道幅員1 | ||
| 位置指定道路1 | |||
| 接道方向2 | 接道間口2 | ||
| 接道種別2 | 接道幅員2 | ||
| 位置指定道路2 | |||
| 国土法届出 | 不要 | ||
| 周辺環境 | 指宿市役所まで徒歩約9分(約650m) ひばりこども園さんまで徒歩約5分(約400m) 柳田小学校まで徒歩約14分(約1000m) 南指宿中学校まで徒歩約32分(約2300m) プラッセだいわさんまで徒歩約13分(約1000m) ドラッグストアモリ指宿店さんまで徒歩約10分(約750m) ドラッグストアコスモス指宿市役所前店さんまで徒歩約10分(約800m) 散歩道Pizza Frittaさんまで徒歩約8分(約600m) セブンイレブン指宿市役所前店さんまで徒歩約10分(約750m) SUMOMO BAKERY指宿店さんまで徒歩約10分(約800m) ケーキハウスアンデルセンさんまで徒歩約5分(約350m) |
||
| 設備・条件 | 上下水道/プロパンガス ■本土地の地積は、土地区画整理法第103条第4項に基づき換地処分公告の翌日に確定します。 ■徒歩の速度は、80m/分として算出しております。 |
||
| 自社物 | 状態 | ||
