

指宿駅から徒歩約5分。
渡瀬通りに面した、視認性の高い場所に本物件はございます(*˙꒳˙*)‧⁺✧︎*
ここは、長く地域医療を支えてこられた高橋眼科さんがあった場所。
その役目をそっと終え、このたびオーナー様より次の担い手探しのご依頼をいただきました✧︎*。
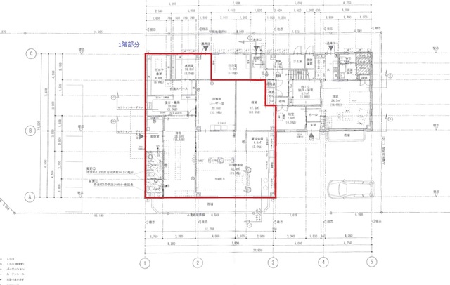
テナント専有面積は約52坪。間取図の赤枠内になります。
駐車場も14台分とゆとりがあり、来客型の業態にとって心強い条件がそろっています*ˊᵕˋ)੭
築6年(2025年12月6日現在)の建物は、都会的なデザインで清潔感があり、訪れる人の印象にも残りやすい佇まいです(●︎´-` ●︎)ポ
―活かし方は、あなた次第。
*医療・介護・サロン
*カフェ・スイーツ・ベーカリー
*雑貨・書店・ギャラリー etc…
※恐縮ではございますが、お酒の提供を主とする飲食店、また22時以降の営業はご遠慮いただいております。申し訳ございません。
さらに嬉しいのは、生活動線のど真ん中ということ。
スーパー、コンビニ、銀行、郵便局など、市街地の主要施設へ徒歩圏。
普段の暮らしの中で自然と目に触れ、人が集い、認知が広がる立地です。・:*:・(*´ー`*人)
新しい看板が掲げられる日を、この建物はきっと静かに待っています。
ここから紡がれる次の物語。その主役は、あなたです(*˘︶˘*).。.:*♡
お気軽にお問い合わせくださいませ✧︎*。
※写真内、緑色の丸マークをクリック(またはタップ)していただけたら、順番に写真がスライドいたします☆
| 賃料 | 25万円 | 物件種別 | 貸店舗/貸事務所 | 間取 | |||
|---|---|---|---|---|---|---|---|
| 共益費・管理費 | 敷金 | 賃料の2ヶ月分 | 礼金 | 保証金 | |||
| 所在地 | 指宿市湊1丁目11−43 |
|---|---|
| 交通 | JR指宿枕崎線 指宿駅まで徒歩約5分(約350m) |
| 築年月 | 平成31年1月12日新築 | 新築/中古 | |
|---|---|---|---|
| 面積 | 店舗面積(1階専有部分)173.1㎡/52.36坪 | 計測方式 | 公簿 |
| バルコニー | 向き | 南向き | |
| 建物階数 | 地上2階建て | 部屋階数 | |
| 部屋/区画番号 | 1階(間取図の赤枠内) | 総戸/区画数 | |
| 建物構造 | 鉄骨造スレートぶき2階建 | ||
| 間取内容 | |||
| 住宅保険料 | 弊社では提供しておりませんので、ご自身の責任でご加入下さい。 | ||
| 駐車場 | 14台 | 取引態様 | 仲介 |
| 引渡/入居時期 | 現況 | ||
| 周辺環境 | 鹿児島信用金庫指宿支店さんまで徒歩約2分(約110m) 乗船寺保育園さんまで徒歩約2分(約140m) タイヨー指宿店さんまで徒歩約3分(約180m) セントラルパーク指宿まで徒歩約3分(約180m) セブンイレブン指宿渡瀬通店さんまで徒歩約3分(約210m) 指宿郵便局まで徒歩約8分(約550m) |
||
| 設備・条件 | ■用途地域 商業地域 ■汚水設備 下水道 ■家賃保証委託料 賃料の1ヶ月分(翌年以降2.5万円/年 ■仲介手数料 賃料の1ヶ月分+消費税 |
||
| 自社物 | 状態 | ||
