

指宿駅から歩いて約3分の好立地*ˊᵕˋ)੭
建売住宅のお披露目でございます♪
お家の外観カラーはグレーを基調とし、片流れ屋根がさらにモダンな雰囲気を演出しております☆
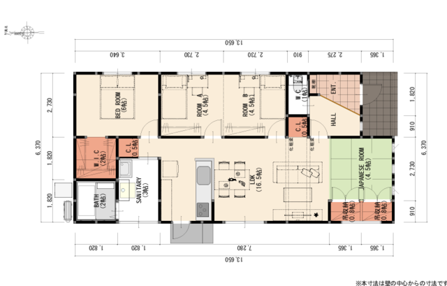
間取りは4LDKで、4.5帖の和室が1室あるのも嬉しいポイント。・:*:・(*´ー`*人)
日本人の気質のせいか畳があると妙にホッとしませんか(●︎´-` ●︎)ポ
リビングは梁あらわし天井を採用。ニクい演出に惚れてまう〜(*˘︶˘*).。.:*♡
オール電化なので、小さなお子様がいるご家庭や、ご年配の方でも安心してお住まいいただけるかと思います(*・∀︎-)b
そんでもって浴室乾燥や食洗機もついてますよ( ˊᵕˋ )
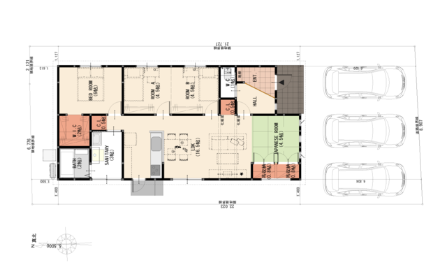
カーポートを備えた駐車場はシックな装いに仕上げられており、外観・内観ともに素敵に調和しております(。v_v。)
まずは来てみてふれて体感していただけたらと思います( •̀∀︎•́ )✧︎
内覧可能ですのでお気軽にお問い合わせくださいませ✧︎*。
| 価格 | 2,480万円 | 物件種別 | 戸建て | 間取 | 4LDK |
|---|
| 所在地 | 鹿児島県指宿市湯の浜1-3-21 |
|---|---|
| 交通 | JR指宿枕崎線 指宿駅まで徒歩約3分(約170m) |
| 築年月 | 令和5年6月完成 | 新築/中古 | 未入居物件 |
|---|---|---|---|
| 面積 | 83.22m2(25.17坪) | 計測方式 | 公簿 |
| バルコニー | 向き | 南向き | |
| 建物階数 | 地上1階建て | 部屋階数 | |
| 建物構造 | 木造1階建(軸組工法) | ||
| 間取内容 | 洋室6帖/洋室4.5帖×2/和室4.5帖/LDK16.5帖 | ||
| 駐車場 | あり | 取引態様 | 仲介 |
| 引渡/入居時期 | 現況 | ||
| 地目 | 宅地 | 用途地域 | 商業地域 |
| 都市計画 | 非線引き区域 | 地勢 | 平坦 |
| 土地面積 | 194.77㎡(58.9坪) | 土地面積計測方式 | 公簿 |
| 土地権利 | 所有権 | 接道状況 | |
| 接道方向1 | 接道間口1 | ||
| 周辺環境 | 丹波小学校まで徒歩約6分(約450m) 南指宿中学校まで徒歩約16分(約1100m) 指宿郵便局まで徒歩約11分(約850m) タイヨー指宿店さんまで徒歩約4分(約250m) 生協コープかごしま指宿店さんまで約23分(約1700m) セブンイレブン指宿渡瀬通店さんまで徒歩約5分(約400m) |
||
| 設備・条件 | 設備:公営水道/個別浄化槽/オール電化/建築確認番号:第R05SHC100728号/駐車場:カーポート | ||
| 自社物 | 状態 | ||
